1 Bed Properties For Sale In WR10, Pershore, Worcestershire

13 results
Filters
Save
Min beds
Max beds
Min price
Max price
Confirm new filters
Currently active filters: 2
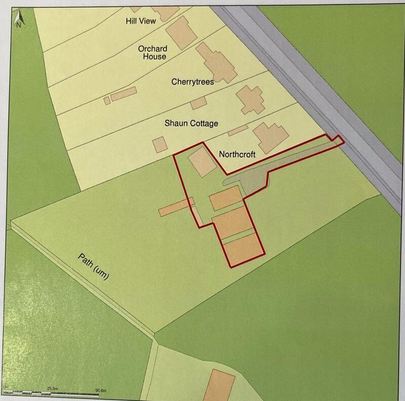
Land For Work-live Unit, Pensham, Pershore
1 Bedroom Property
Value guide
**LAND WITH PLANNING PERMISSION GRANTED FOR A WORK LIVE UNIT W 22 01976 FUL** Land of approximately 0.57 acre with an additional piece of land approx. 0.5 acre available by separate negotiation. The p...
£150,000 Available
Listed 2 months ago
Broadgrove Nursery Farm Shop, Eckington Road, Birlingham
1 Bedroom Property
Value guide
**A REDEVELOPMENT SITE WITH BOTH RESIDENTIAL AND COMMERCIAL OPPORTUNITIES** Commercial consent granted for 7 units on part of the site balance is available for further development. Residential approva...
£600,000 Available
Listed 2 months ago
Defford Road Pershore
1 Bedroom Retirement Property
Value guide
Apartment number 16 is set on the first floor within this development of 23 one and two bedroom apartments. Set in a convenient location providing resident parking and communal garden overlooking the ...
£249,500 Available
Listed 3 months ago
Defford Road Pershore
1 Bedroom Retirement Property
Value guide
**RARE OPPORTUNITY TO PURCHASE AN OVER 60 S GROUND FLOOR RETIREMENT APARTMENT BUILT IN 2017** One bedroom ground floor retirement apartment within close proximity to Pershore town centre and local ame...
£230,000 Available
Listed 5 months ago
Defford Road Pershore
1 Bedroom Apartment
Value guide
CHURCHILL RETIREMENT LIVING HAVE CREATED NIGHTINGALE
LODGE WHICH IS SITUATED NEAR TO THE DOCTOR S SURGERY
AND WITHIN WALKING DISTANCE OF PERSHORE TOWN S
AMENITIES. WE ARE PLEASED TO OFF...
£249,500 Available
Listed 6 months ago
Monks Close Pershore
1 Bedroom Apartment
Value guide
**FIRST FLOOR APARTMENT WITHIN CLOSE PROXIMITY TO PERSHORE TOWN CENTRE WITH VIEWS TO PERSHORE ABBEY** Communal stairs to the apartment. Entrance hall, light and airy lounge bedroom, contemporary fitte...
£90,000 Available
Listed 6 months ago
Rutters Farm Court Pershore
1 Bedroom End of Terrace
Value guide
Coach House located in a quiet and popular area of Charlton. Open plan living space ideal for First Time Buyers.

There is an open plan living style leading onto a double bedroom with a family...
£130,000 Available
Listed 6 months ago
Defford Road Pershore
1 Bedroom Retirement Property
Value guide
**RARE OPPORTUNITY TO PURCHASE AN OVER 60 S GROUND FLOOR RETIREMENT APARTMENT BUILT IN 2017** One bedroom ground floor retirement apartment within close proximity to Pershore town centre and local ame...
£230,000 Available
Listed 6 months ago
1

Map

Crime level is low

Nearby locations

Less expensive areas
WR1 WR11 WR14 WR15
More expensive areas
WR12 WR13

Latest sales

  1. 1. The Green House The Green £355,000 November 2024
  2. 2. 10 Long Hedges £142,000 November 2024
  3. 3. Broadway House Broadway Lane £855,000 November 2024
  4. 4. 3 Church Street £325,000 November 2024
  5. 5. 3 Merryfield £505,000 November 2024

Book your free valuation with Relocation Agent now

Relocation Agent will match you and your property to the most suitable local estate agent from their vast network of trusted experts.

It really is that easy. Click here to claim

Frequently asked questions about WR10, Pershore, Worcestershire

What is the average price in WR10, Pershore, Worcestershire?

The average price in WR10, Pershore, Worcestershire is currently £343,848. That's 17.3% higher than the national average of £284,464. Mouseprice is currently listing 260 properties for sale in WR10, Pershore, Worcestershire.

Mouseprice also lists...

What schools are there in WR10, Pershore, Worcestershire?

Nearby schools in WR10, Pershore, Worcestershire include Abbey Park First and Nursery School, Abbey Park Middle School, Cropthorne-with-Charlton CofE First School, Eckington CofE First School, Elmley Castle CofE First School

What stations are there in WR10, Pershore, Worcestershire?

Nearby stations in WR10, Pershore, Worcestershire include Pershore Station, Evesham Station, Ashchurch for Tewkesbury Station, Worcester Shrub Hill Station, Worcester Foregate Street Station.

How can I get a valuation for my home?

The Mouseprice AVM provides a great estimate of what your home is worth. If you would like an free in-depth agent valuation, click here to book one.

How much does it cost to move home?

The cost of moving home in WR10, Pershore, Worcestershire for buyers is on average around £18,692 and WR10, Pershore, Worcestershire sellers can expect to pay local estate agents an average of £4,298. Get a free conveyancing quote.